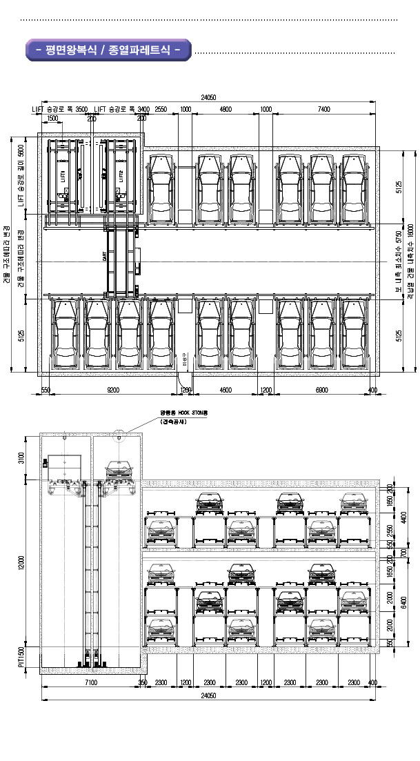
| ¡á ÁÖÂ÷¼³ºñ Ç¥ÁØ»çÇ× |
| ¼ö¿ë°¡´É´ë¼ö |
ÃÖ¼Ò 20´ë - ¹«ÇÑ´ë (LIFT 1±â´ç ÃÖ´ë 70´ë) |
| ÁÖÂ÷ÀåÄ¡ Á¾·ù ¹× ¹æ½Ä |
Æò¸é¿Õº¹½Ä (PALLET TYPE) |
¼ö¿ë°¡´É
ÀÚµ¿Â÷±Ô°Ý |
˟ˌ |
5100 mm |
| ÀüÆø |
1850 mm |
| Àü°í |
1600 mm |
| Áß·® |
1850 kg |
| LIFT |
±Ç»ó¸ðÅÍ |
22kw × 4P & D.C BRAKE |
| ±Ç»ó¼Óµµ |
45 ~ 60 m/min (½Â° °Å¸®¿¡ ºñ·Ê) |
| ȾÇà¸ðÅÍ |
1.5kw × 4P & D.C BRAKE |
| ȾÇà¼Óµµ |
45 m/min (Á¤°Ý¼Óµµ) |
| CART |
ÁÖÇà¸ðÅÍ |
1.5Kw × 4P & D.C BRAKE, 2SET |
| ÁÖÇà¼Óµµ |
80 ~ 120 M/MIN (ÁÖÇà °Å¸®¿¡ ºñ·Ê) |
| ȾÇà¸ðÅÍ |
1.5kw × 4P & D.C BRAKE, 2set |
| ȾÇà¼Óµµ |
45 m/min (Á¤°Ý¼Óµµ) |
| PICKING
¸ðÅÍ |
0.4kw × 4P & D.C BRAKE |
| PICKING
¹æ½Ä |
RACK & PINION Á÷Á¢ ±¸µ¿½Ä |
| Àü±âÁ¦¾îºÎ»ç¾ç |
¸ðÅÍÁ¦¾î±â |
IGBT INVERTOR |
| ¿îÀüÁ¦¾î¹æ½Ä |
PLC ¹æ½Ä(±âº») |
| Á¶ÀÛ¹æ½Ä |
TOUCH SCREEN or COMPUTER ½Ä (¼±ÅÃ) |
| Àü¿ø |
µ¿·ÂÀü¿ø |
3»ó, AC 380V, 60Hz and 3»ó, AC 220V, 60Hz |
| ¾ÈÀüÀåÄ¡ |
ÁøÀÔ±¸ À¯µµµî ¹× ³»ºÎ ¾È³»µî, Â÷·®À¯µµ°Å¿ï
ÁøÀÔÃþ Â÷·® À§Ä¡°¨Áö ¼¾¼
±Ç»ó WIRE Àü´Ü°¨Áö ¼¾¼
LIFT ¹× CART OVER-RUN ¹æÁö SYSTEM
ºñ»óÁ¤Áö SYSTEM
¾ÈÀü°¡µ¿ È®ÀÎ SYSTEM
|